OBRAS EN EJECUCIÓN

47 e/ 2 y 3

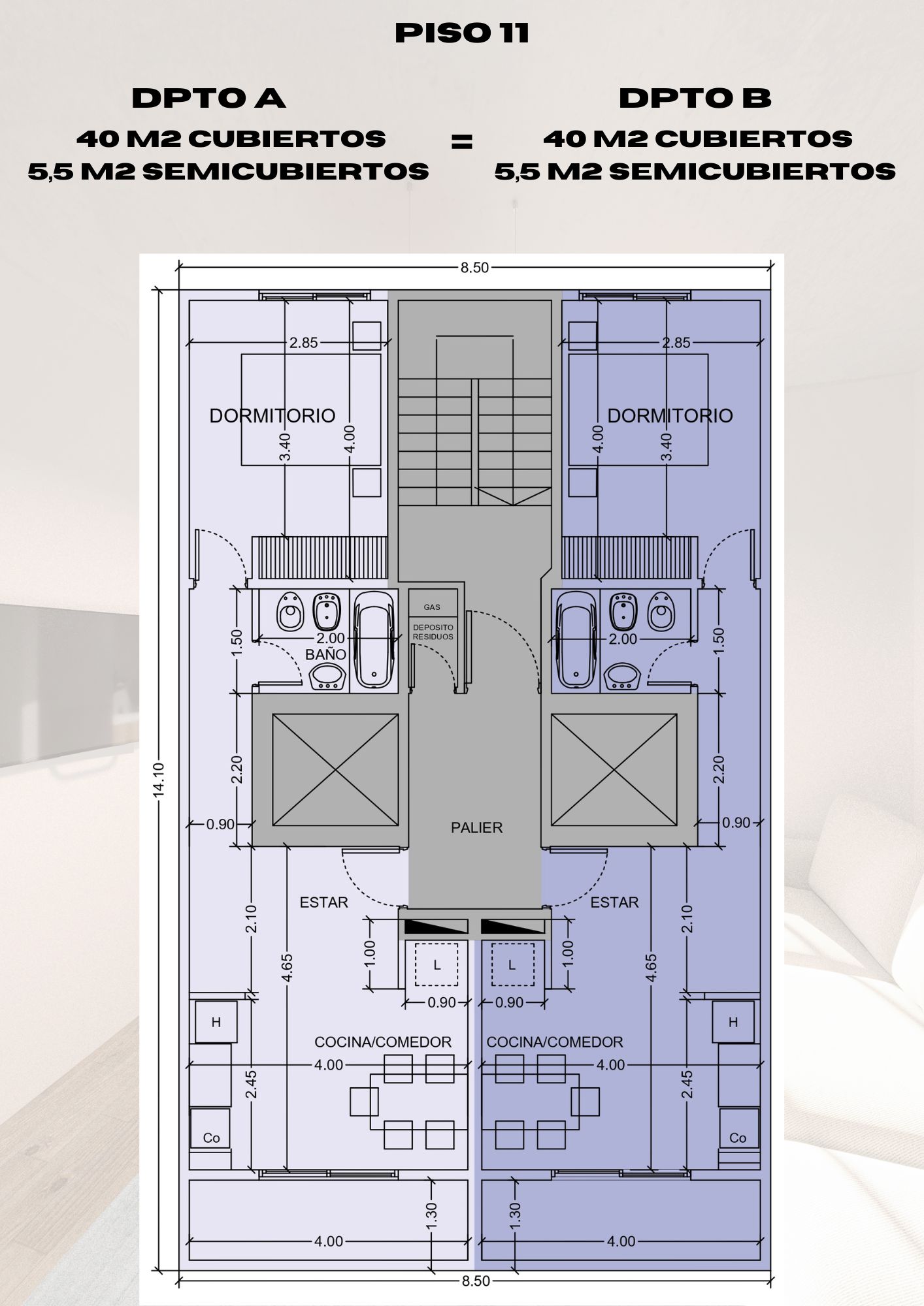
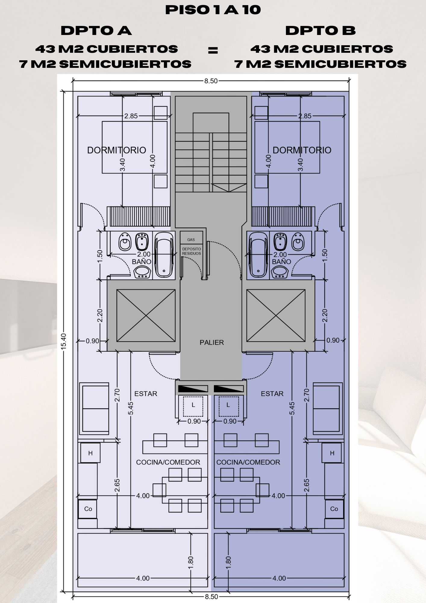
CONSULTE UNIDADES DISPONIBLES. Edificio de 11 pisos. 22 Semipisos. Local comercial en Planta Baja. Quincho de uso común con parrilla. Dos ascensores. Semipisos de 43 m2 cubiertos y 7 m2 semicubiertos (balcón). Estar comedor con amplio balcón al frente. Cocina integrada con mueble bajo mesada. Un dormitorio al contrafrente con placard con interior completo. Baño completo. Calefactores de tiro balanceado en estar comedor y en dormitorio. Pre-instalación para lavarropas. Quincho común ubicado en patio trasero, con parrilla y baño. Local comercial de 53 m2 en Planta Baja, a la calle, con baño y oficina/depósito, según corresponda.